References - order by products

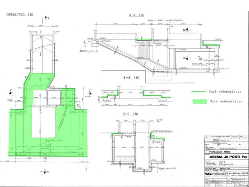
Finland, Pieksämäki, Pieksämäki station tunnel

TPO insulation of the tunnel roof, track 1-5 
-TPO 2.0: 274m2 with upstand and downstand
-Rubber carpet 4mm as a protective layer under the insulation 
-Rubber carpet 2 x 10mm at the tracks and 1 x 10 mm elsewhere

- 6 x 60 mm rst concrete screws K300

Object
Pieksämäki station tunnel, Pieksämäki, Finland 
Product applied
KÖSTER Contact Adhesive
KÖSTER TPO 2.0
KÖSTER TPO 2.0 U
Select product:

 

Select reference:
  Portugal, Guimarães, Pingo Doce, Water Tank
  Portugal, Pombal, Private Villa
  Portugal, Braga, Garibaldi Apartment Building
  United Kingdom, London, Kensington, Flat Roof Waterproofing
  Deutschland, Gifhorn, REAL Markt, Flachdachabdichtung mit TPO
  Portugal, Santo Tirso, Pingo Doce Supermarkt
  Portugal, Vila Nova de Gaia, Toyota Händler
  Portugal, Monção, Pingo Doce Supermarkt
  Portugal, Cascais, BMW Händler
  Deutschland, Köln, Carlswerk / Bauteil "Depot"
  Deutschland, Gernsheim am Rhein, Schwimmteich eines privaten Bauherrn
  Deutschland, Köln, Neubau Bürogebäude Coeur Cologne, Dachabdichtung mit TPO-Dachbahnen
  Deutschland, Duisburg-Baerl, Mehrfamilienhaus, Flachdachabdichtung
  Deutschland, Fürstenfeldbruck, EDEKA
  Deutschland, Bad Oldesloe, Privathaus
  Portugal, Alenquer, Sacopor-Cimpor
  Portugal, Oeiras, Pingo Doce
  Portugal, Évora, Pingo Doce
  Portugal, Aveiro, Pingo Doce
  Portugal, Lisbon, Mediapro
  Portugal, Lisbon, Industrial Warehouse
  Portugal, Cascais, BMW Dealership
  Portugal, Monção, Pingo Doce Supermarket
  Portugal, Vila Nova de Gaia, Toyota Dealership
  Portugal, Santo Tirso, Pingo Doce Supermarket
  Portugal, Cascais, CEA - Centro Empresarial da Abóboda
  Portugal, Porto, ISAG – European Business School
  Angola, Uige Provence, Water treatment facility
  Portugal, Guimarães, Confeções Degori
  Portugal, Lisbon, Oeiras, Pingo Doce Supermarket
  United Kingdom, London, Balcony Refurbishment
  United Kingdom, Scotland, Perth, Retail Unit
  United Kingdom, Devon, House Extension
  Sweden, Lindesberg, Nammo
  Slovenia, Kranj, flat roof on Kolodvor office building
  Slovenia, Škofja Loka, Hotel Lonca
  Slovenia, Torovo, Waterproofing of a private pool
  Portugal, Industrial Warehouse, Roof Waterproofing with KÖSTER TPO Membranes
  Portugal, Porto, Private House
  Portugal, Lisbon, Public Highschool
  Portugal, Barcelos, Pingo Doce
  Portugal, Braga, House Building
  Portugal, Alcochete, Public High School
  Portugal, Braga, Obra Rua das Oliveiras
  Portugal, Braga, Private House
  Portugal, Vila Nova de Gaia, Asbestos Apartment Building roof rehabilitation
  Bulgaria, Peshtera, Production Plant of BIOVET
  Bulgaria, Dobrich, Carpetmax Flooring and Carpet Store
  Bulgaria, Dobrich, TECHMART Shop
  Bulgaria, Sofia, Film Studios "NU BOYANA"
  Bulgaria, Sofia, The BLOCKS Specialized Rehabilitation Hospital
  Bulgaria, Pavel Banya, KNYAZ PAVEL Hotel
  Bulgaria, Sofia, MÖMAX – Furniture Store
  Bulgaria, Pleven, CARPETMAX – Flooring and Carpet Store
  Bulgaria, Plovdiv, Professional High School of Tourism “Asen Zlatarov”
  Bulgaria, Sofia, LC Waikiki store
  Bulgaria, Sofia, Fantastico Supermarket
  Bulgaria, Plovdiv, PANORAMA Park Project
  Bulgaria, Petrich, Supermarket BILLA
  Bulgaria, Sofia, ONE 11 Residential Complex
  Bulgaria, Sofia, BULGARIA MALL
  Bulgaria, State Reserve Warehouses
  Bulgaria, Kazanlak, Hydraulic Plant
  Bulgaria, Sofia, Central Railway Station
  Bulgaria, Zlatni Pjasaci, "Discoteque PR"
  Bulgaria, Melnik, Lozenitsa Estate
  Bulgaria, Sofia, Belgravia Apartments
  Bulgaria, Sandanski, Kindergarten Dora Gabe
  Bulgaria, Sofia, 140 Secondary School „Ivan Bogorov“
  Finland, Pieksämäki, Pieksämäki station tunnel
  Philippines, Manila, Fort Palm Springs condominium BGC roof decks
  Panama, Gorgona, Private flat building
  Panama, Costa Del Este, Food Court's roof of a business Park
  Netherlands, Delft, IKEA
  Netherlands, Eemshaven, Eemshaven power plant: New Energy House Visitor Centre
  Netherlands, Vlissingen-Buitenhaven, Örsted Wind Farm Borssele
  Israel, Herzliya, Weil Center
  Philippines, Manila, Roof Deck of the W building
  Philippines, Makati City, Residential house
  Finland, Pieksämäki, Pieksämäki station tunnel
  Finland, Pieksämäki, Pieksämäki station tunnel
  Finland, Kuopio, deck bridge
  Finland, Seinäjoki, Railway bridge
  Finland, Juankoski, bridge
  Finland, Jalasjärvi/Kurikka, railway bridge
  Finland, Pieksämäki, Pieksämäki station tunnel
  Finland, Jyväskylä, Jyväskylä station tunnel
  Estado de México, Puerto Vallarta, Jalisco, Capilla de Hotel Resort Garza Blanca
  Polska, Kraków, Sklep LIDL - Osiedle Strusia
  Polska, Zakopane budynek hotelowy
  Polska, Opole, hydroizolacja dachu płaskiego
  Polska, Zator, Energylandia
  Portugal, Aveiro, Pingo Doce
  Slovenija, Inpos Celje, Izdelava ravne strehe s KÖSTER TPO
  Slovenija, Škofja Loka, Hotel Lonca
  Slovenija, Torovo, Tesnjenje privatnega bazena

 

Back

Top
Albania Bosnia and Herzegovina Brasil Bulgaria China Colombia Croatia Czech Republic Denmark Finland Germany Greece Iraq Italy Japan Kazakhstan Kuwait Latvia Lebanon Macedonia Mexico Netherlands New Zealand Panama Poland Portugal Romania Serbia Slovakia Slovenia South Africa Spain Turkey Ukraine United Kingdom United States of America